Holiday Home Sunita - 2-8km from the sea by Interhome - Toftum
Dänemark verzaubert mit seinem einzigartigen Lebensgefühl – der berühmten „Hygge“. Spaziere durch Kopenhagens bunte Häfen, radle an endlosen Küsten entlang oder erkunde die märchenhaften Inseln Bornholms. Besuche Legoland in Billund, tauche ein in die Geschichte der Wikinger und genieße frischen Fisch in kleinen Hafenstädten. Ob Familienurlaub, Städtetrip oder romantische Auszeit – hier findest du das perfekte Hotel, um Dänemark in all seiner Vielfalt zu erleben.
Holiday Home Sunita - 2-8km from the sea by Interhome
WiFi
Spa/wellness
Tierannahme
WiFi
Spa/wellness
Tierannahme
Featuring accommodation with a terrace, Holiday Home Sunita - 2-8km from the sea by Interhome isin Toftum. Offering free WiFi throughout the property, the non-smoking holiday home has a sauna.
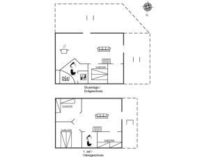
The spacious holiday home features 4 bedrooms, a TV, a fully equipped kitchen with a dishwasher and an oven, and 2 bathrooms with a shower. There is also a seating area and a fireplace.
Lakolk Beach is 2.3 km from the holiday home, while Ribe Cathedral is 37 km away.
The hotel day starts from hour 16:00 and ends at 10:00.
1 Babycot available, charges apply.This property will not accommodate hen, stag or similar parties.
Please inform in advance of your expected arrival time. You can use the Special Requests box when booking, or contact the property directly with the contact details provided in your confirmation.
Please note that the full amount of the reservation is due before arrival. will send a confirmation with detailed payment information. After full payment is taken, the propertys details, including the address andto collect keys, will be emailed to you.
Holiday Home. Guests will have a special experience as the holiday home offers a fireplace. Featuring 4 bedrooms and 2 bathrooms with a shower, this spacious holiday home offers a well-fitted kitchen and a terrace. In the well-fitted kitchen, guests will find a stovetop, a refrigerator, a dishwasher and kitchenware. This holiday home provides a seating area and a TV. The unit has 5 beds.
Waschsalon/Wäscheservice
Kontaktloser Check-in/Check-out
Personal befolgt alle Sicherheitsrichtlinien der örtlichen Behörden
Internet
Haustiere erlaubt
WLAN in allen Bereichen
Unterkunft wird zwischen den Aufenthalten desinfiziert
Sauna
WLAN
Abtrennungen oder physische Barrieren zwischen Personal und Gästen in entsprechenden Bereichen
Nichtraucherunterkunft (Alle öffentlichen und privaten Bereiche sind Nichtraucherzonen)
Abstandsregeln werden eingehalten
Nichtraucherzimmer
Bettwäsche, Handtücher und Wäsche werden nach Richtlinien der örtlichen Behörden gewaschen
WLAN inklusive
